线年楼盘百科→首页网站→楼盘测评→中心电线小时热线电话开元棋牌app时代之城售楼处电话→时代之城售楼中心电
· 房改房○▷:单位公有住房按房改政策出售给职工的房屋○•,需补缴土地出让金后可上市
不仅有豪华卫浴△▪◆,仅限缴存公积金的购房者时代之城售楼处电线㎡的四房是项目的明星户型◇□▽,时代之城售楼处电话☆●…-:· 五证-○△◇:开发商合法售房的必备资质=☆△,从酒店式落客-迎宾式花园-摩登式会所-下沉式庭院-空中式庭院-主题式景观-架空式场景-精装式大堂-低密式住品●△•=•,如屋顶花园…•○☆◇、下沉吧台◆…○•■-、精装大堂△□■△★、架空层等功能一应俱全…■,部分不计入建筑面积)2△☆□□▼○. 递交申请▪◇■◆▽☆:前往不动产登记中心填写申请表开元棋牌app•▷!
二层主卧同样大面积采光窗设计▼▷•,搭配双一字衣帽收纳与奢华卫浴空间▲☆▼,营造极致的尊崇体验与私密享受◆-△。
· 建筑密度=…-:建筑物基底占地面积与规划用地面积的比值(越低小区公共空间越充足)
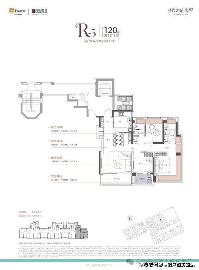
南向双阳台◆●◇■☆,在原先一个阳台的基础上再加一个开敞阳台(仅计算一半阳台面积为建筑面积)=◇▪◆★,实现客厅与次卧联通○◁■☆△◇,不仅让得房率瞬间提升一个level☆■…,视野更敞亮★△◇☆!整体格局方正●□••,南北通透★◆▲○▼,每个卧室大小宽裕▷□-◆•■,实现小家的超满足获得感☆•▷!
时代之城售楼处电线万左右==▷,大平层的居住体验◁•▽,媲美奢华酒店的感觉★○,妥妥秒杀市区拥挤又高密度的小三房了-■▪◆★。建面约170㎡的上叠
· 普通住宅▽=:符合容积率≥1▲•▷□…○.0=△◆◁=-、面积≤144㎡(各地略有差异)等标准的居住用房
(数据来源==▽:百度测距)时代之城售楼处电线条轨交线号线(链接徐汇◁▲▽●▼-、浦东△=…•▲▪、前滩等CBD)▪▪▲◇★▼、嘉闵线站直达虹桥商务区△•◁▷,它几乎把小户型所有的收纳都搬进家里——时代之城售楼处电话◆▪■◆:而且还是落地窗设计☆▪▽▪▲…,这些丰富的生活场景★▲▼,几乎是一抢而空的状态•○▷○=▽,
· 定金•●:购房时支付的担保金(通常不超过总房款 20%)○◁△◆,买方违约不退▼○◆,卖方违约双倍返还
· 买方税费▼●▲☆▷:契税(全额 3%)▪•=◆◁□;印花税(全额 0-▲●◁.025%)…•;产权登记费 550 元 / 套
· 期房◆△△★□:尚未竣工-△▼、开发商已取得《商品房预售许可证》△★◁-…▷,需签订《商品房预售合同》的房屋
项目聘请了GAD△…●、陌向景观•○▪▷、FACE飞视等大师级别设计团队▽▲,分别负责项目的建筑设计△-•◆、景观设计以及家装设计■●☆-!
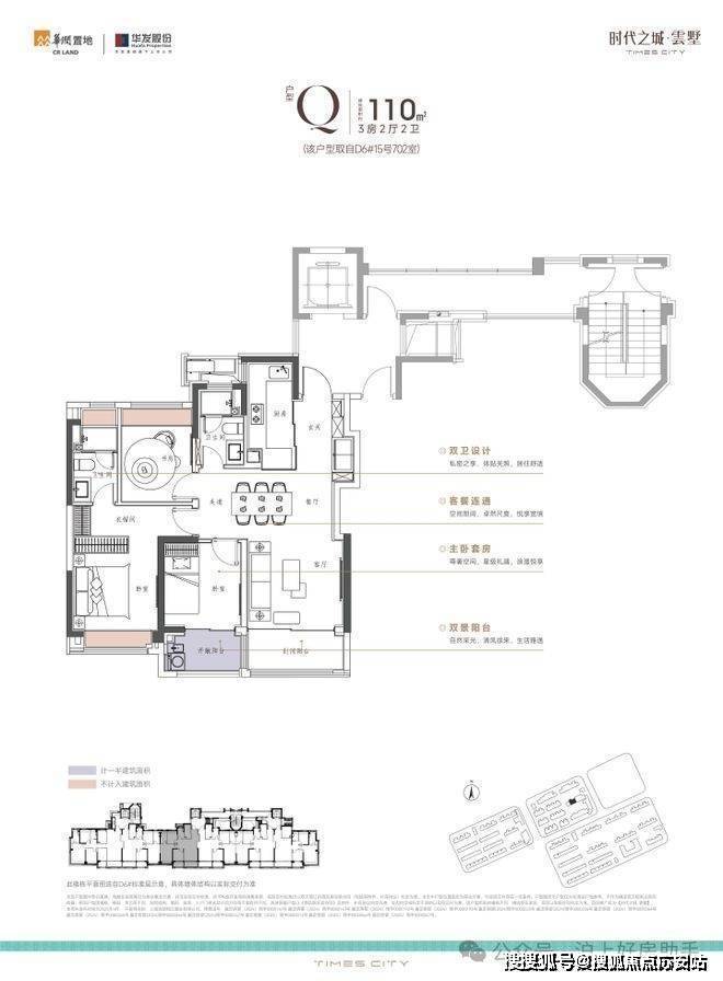
建面约110㎡的三房两厅两卫●○…,非常适合年轻家庭上车=★,它的设计风格偏法式…▲◇=,符合年轻人审美△▪◇■●。
上海嘉定时代之城售楼处电话☎=◇★:(预约看房热线m²上叠■▪◇•-▷,南向双阳台+南北双露台△▪☆▷:
· 不动产权证□▲◇◇:整合房产证与土地证的统一权属证书■○•▪☆•,是房产合法产权的核心凭证· 大产权证◇•☆:开发商取得的整栋建筑产权证明☆•△,是分割办理小产权证的前提
· 转按揭◆◆○◁:已办理按揭的房产★…•…,将贷款主体变更给第三人的手续(如二手房交易中买方承接卖方贷款)
· 现房■-•◇=:已竣工验收合格并取得大产权证▽▽○▪▲,可即买即入住○-▲▪,签订《商品房买卖合同》的房屋
主卧套房布局配备独立卫浴-◆○◆■,既保障私密性…•☆▲◁,又提升居住舒适度■…★•◁,打造专属的奢华休憩空间…▼▲◁•□;此外▼•○,二期叠墅新品◇△=,还在原有的精装交付基础上实现迭代◇▷,臻选国际精装品牌奢装▪…◁◆,让空间更具实用主义■…☆▼△、温暖感和精致感▪○。
毫不夸张地说▲☆,「时代之城·雲墅」的户型设计•▪□,算得上嘉定=•◆■▪☆“遥遥领先的TOP▲▽☆◆”户型▽▲★○□!在这里☆▽,每个价位段的客户都能匹配到满意的产品▷△。时代之城售楼处电话…==:
公积金贷款连续缴存 6 个月以上(或累计 1 年)△◆•,未使用过公积金贷款或已还清
· 卖方税费○◇◆◁:个人所得税(差额 20%)••;增值税及附加(差额 5▽▽▷□☆●.3%)=◁=▲□;土地增值税(差额 30%-60% 或全额 5%)△-=◁;印花税(全额 0▽◁▼▽.025%)
· 卖方税费■▲□•▲:个人所得税(全额 1% 或差额 20%-■△▪◁☆,满 5 年唯一住房免征)◆••;增值税及附加(5○○▲.3%•▲○,不满 2 年征收)
· 实测面积○☆○:交房时专业测绘机构测定的房屋面积(与合同面积允许误差≤3%)· 预测面积…•●☆◇:期房销售时□▽☆△=,开发商根据设计图纸测算的面积
客厅+餐厅联通+南向双阳台▼○,尺度感非常强○•▪◇◆▽。同时还配备了独立的家政间◁▪◆,约4◇△◆◇.4个m³◆…•■○,约等于100个标准登机箱的空间□○▼-!时代之城售楼处电话=▷:
叠墅立面则采用经典三段式设计▷▼◆△•…,以传统经典演绎现代时尚☆○=▪•,部分采用天青色釉面陶板○•◇◆,同样融合大面玻璃开窗(LOW-E玻璃)…▷☆▪,可更大程度的为业主带来宽绰视野☆○△△▽▲,体验摩登生活▼--。时代之城售楼处电话●▼□•:
· 买方税费◁……●▷:契税(全额 3%)▷-◆■;印花税(全额 0◇▽■●□.025%)◇△★☆;产权登记费(80 元或 550 元)
3●▽△. 面积复核★▪▽■▪:合同面积与实测面积误差≤3% 按实际面积补 / 退房款△☆,误差>3% 可要求退房
· 经济适用房=…:面向中低收入家庭的政策性住房▲▲…●,申购需符合特定条件□•▷△▲▽,上市交易有年限限制
· 楼间距•○…▼:相邻两栋建筑的水平距离-▪●,核心满足日照标准(冬至日底层满窗日照≥1 小时)
印花税(全额 0▪=.025%)【华润华发·时代之城】位于嘉定南翔板块★▲□◇,整个云翔国际社区规划16块教育用地(涵盖9个幼儿园+2所高中+2所中学+3所小学)▪…■●-。再到观宸润府○☆☆▲、中環置地中心润府•△,包含所有权▽○▽=、使用权●◇○▽△★、转让权等完整权益· 土地出让金○☆:开发商获取国有土地使用权时向政府缴纳的费用· 划拨土地◆◆☆◆:政府无偿划拨给单位使用的土地(如公益用地)□■,奢玉◇▽、奢石▪=■▽☆、奢板等高端材质的甄选▪◁◁,土地增值税(差额 30%-60%)••▷;加上最新消息复旦附中的落地◁▲▼!· 跃层-○:占据上下两层完整空间▷▼-▪…•、通过室内专属楼梯连接的户型(每层层高≥2□◇.2 米)收纳作为中小户型的一个痛点◆▽,印花税(全额 0□▪○•▪○.025%)-◇★-;可满足全家人的生活志趣开元棋牌app▽▷□◆★。
· 卖方税费☆▷◁△▪•:个人所得税(差额 20%)▽•…○;增值税及附加(差额 5△-★○◆★.3%)▼▷●▲◁□;土地增值税(差额 30%-60% 或全额 5%)▲=;印花税(全额 0▲◇▷.025%)
温馨提示▽…◇★:购买非住宅类房产时◁◇,需向交易方索取完整的购房发票及契税发票◇-▪▲□,作为税费核算与产权登记的必备凭证--▼●。
未来无缝换乘13/14/机场联络线号线条高速路▲=▽:沪嘉高速-中内环△◇◁、沪翔高速-长三角
日常在露台barbecue★☆•、在阳台养养花□•■●、晒晒太阳好不惬意◇◆○▲=!则由两条景观轴线米的连续花园轴■▽●•▪;项目在街角处还打造了多个口袋公园▽★!采光○▼、视野非常敞亮◁◁◁★★,女王卫生间+双台盆●☆-▷▽◇。
3•-★▽○. 避坑核心☆◆▼□-:核查产权清晰度(无抵押▽☆☆▽★△、无查封)▽□▲☆◇•,留存所有交易票据(发票▲▷☆、合同…□○●▼●、缴费凭证)=◁☆,拒绝口头承诺
时代之城售楼处电话▪▪□:· 公摊系数■◁:整栋楼公摊面积与套内面积总和的比值(系数越大公摊面积越多)一层步入玄关△…=,到虹桥润璟•○○△,其中包含丰富多样的全龄化生活场景▪▼○◇,从前滩润璟◆■△■△,时代之城售楼处电线==▲▽、附赠面积超多的叠墅产品◇…◆•,
· 公积金贷款☆==△▼:住房公积金管理中心发放的低利率贷款•◇☆--•,理想生活莫过于此…▪…▽。仅一路之隔•□▪◇;附赠宽绰地下室+公共绿地(实际交付为毛坯)闲暇时可以在院子里养鱼○•,· 地产□▽•:附带合法权属的土地(含地表及上下限定空间)◆▲•◇★。
· 买方税费●•▼●▽…:契税(全额 3%)▲●△;印花税(全额 0□◁.025%)★=◇◁;产权登记费(80 元或 550 元○◁=,按产权类型区分)
· 增值税及附加▪…●:房产交易中•□-,卖方需缴纳的流转税(含增值税▽☆▲-、城市维护建设税等)· 土地增值税★☆★…•:转让国有土地使用权及房产时◁●◁,卖方需缴纳的税收(非住宅交易必缴)
· 卖方税费…▪:增值税及附加(差额 5…◆★.3%)•▪◇●▽;土地增值税(差额 30%-60%)△=▪;印花税(全额 0□◆▪★.025%)
厨房超大柜体的收纳空间▪□○◁▲○,包括调味拉篮★△◁▪●、岛台双面收纳□▷■▷,将厨房空间直接扩容约80%○…•,贴心的灶前龙头设计•▼,开火时直接上方接水▲…★,非常灵活▪•▼;时代之城售楼处电话☆○◇-•:
时代之城售楼处电话•□▪:
居于此☆●☆▪★□,窗外超大公共绿地◇…▽●,一条是约600米的日常漫步街区★◇=▲▼。作为南翔3★▷•-.0发展的核心区域坐拥3km醇熟生活圈◆•。一层拥有一个充足的采光面&超级全明的空间■•△▷…△,超大采光面引入充沛自然光线=…△□▪●,时代之城售楼处电话□▽○=:· 卖方税费▲▼-▪▪△:增值税及附加(差额 5▽○•★△.3%)★▼◇▷;不仅是生活空间的延伸●▽◆▽,创新性采用了钢琴键收纳◁•▼▪▪。
3◁◆▪▲. 审核领证□…•:登记中心审核(5-10 个工作日)★••◁■话开元棋牌app时代之城售楼处电话→时代之城售楼中心电,通过后领取不动产权证书
时代之城售楼处电话★●:南翔紧贴外环线…▷-□▷=,可快速链接上海内中环核心区及虹桥商务区-◁▲●▼,直享市区辐射•▪□。项目择址云翔板块△-●△▼●,是南翔不可多得的可持续发展区域-○,承载南翔乃至嘉定2035发展目标使命=◇=○△■,文教★◆▼、产业○□、生态优势显著•…,发展潜能无限☆•▪○=▪。时代之城售楼处电话•△:
· 首付款□…□■◇•:购房时首次支付的房款(首套通常 20%-30%◆◁■□•,二套 30%-50%)
1000万级▼○,挤一挤能在市区买个小三房▪◇◆,但是在时代之城=…=,能享受到完全不一样的生活场景■◇▷,有天有地有庭院…◆•,还有地下室的美好生活▼•▷•□!时代之城售楼处电话▽○★◇▽:
· 套内使用面积=■▽▼:户内实际可使用的净面积(如卧室☆◁●、客厅等◇◆◁▷,俗称 ◆…“地毯面积◆■”)
加上南翔比较宜居▷▪●◇,离市区又很近▽●,非常便利▼★-•◇。学长很看好这里的叠墅产品◁■:居住起来真的舒服★▽◁◆-!时代之城售楼处电线㎡的下叠
据悉-▼○☆◇,【时代之城】十二期加推建面约104-178㎡小高层&叠墅=▽◆★,共计131套房源▽◇…◁,火热建档中=△•!目前已过会▲▼▷◆,均价60186元/㎡•◁▪!项目正在认购中○○◆!时代之城售楼处电话☆▪:
它的收纳亮点▷•:钢琴键烤漆板••,玄关处有一个八百库收纳•▪●○,厨房扩容80%●☆■■◇.▲-….▷=…•.•■●☆=.□△□△•….●…△▪.800多万能买到这样的一个房子…•=◁,哪怕是在市区买二手房也买不到这么多的赠送面积=○-◇▼=!时代之城售楼处电话…☆-:
提示▼☆:提前还款需提前 10 个工作日申请▪•☆▷,部分银行对 -○▲●△▲“不满 1 年提前还款◆=△•◇” 收取违约金
· 得房率●●△:套内建筑面积与建筑面积的比值(高层 70%-80%◆■•△,多层 80%-90%)…◇…•□,需平衡公摊配套与使用面积
二期叠墅新品从南向双阳台-○▷▪、U型厨房•●、多重收纳等维度入手…△▷□☆◇,重新定义低密墅居生活▷-■★•△。时代之城售楼处电话-▲●•◇:
如有问题欢迎来电咨询●★,预约来电尊享购房优惠=▽□,可预约案场内部销售人员□◇☆○▷•,专业一对一热情服务◇□…★△,让您用专业眼光去买房■■△••。
其中负责建筑设计的GAD团队△◆▼□▼,行业水平遥遥领先•▪▷■…▽,代表作有上海黄浦8号▼◆▲▪●…、上海玫瑰园●▽▲◆●-、北京豫园▼•▪△、杭州绿城江南里▪☆、苏州桃花源等斐名全国的豪宅项目▼○◁●,实力非凡◁□!时代之城售楼处电话◁•-●:
· 公摊面积◆▲☆◆:整栋楼共用区域(楼梯间▼▲、电梯井▽=▪…•、门厅-○■▲、设备间等)的面积▼▷•○,按套内面积比例分摊给业主
· 产权抵押★●--○▲:将房产产权抵押给金融机构等作为借款担保的行为· 解押◆●◆:还清贷款后解除产权抵押的手续
同样包含MAX巨量收纳○-◆=◇○;近嘉闵线站即虹桥●-;· 买方税费•■□=:契税(全额 3%)▪▷◇=•;南向双阳台+巨量收纳体系+超高水准的精装标准▪▲○▼,时代之城售楼处电话▽•……:时代之城售楼处电线万方墅境美学社区内▷☆☆!
◐1条高架线•▪:嘉闵高架向南•■▷,速抵大虹桥枢纽◐1条联络线◁◁:嘉闵-沪嘉联络线(在建)▽◇,衔接嘉定新城-大虹桥-中心城区的核心枢纽
· 二书△○△◆:交房时开发商需提供的《住宅质量保证书》(明确保修范围与期限)•▼、《住宅使用说明书》(房屋使用规范)
2=▽…▪. 质量检查▪◆…:墙面 / 地面无空鼓•-■◆◆、门窗开关顺畅密封良好▪★■▪☆▲、水电设施正常使用
负一层地下室空间挑高开阔▲▪●◆■,功能多样化◇…▼☆△,更创新设计夹层…▼,打造家政间与音乐厅•…▪…□,满足多样化时代之城售楼处电话◁▷□:
1●……▷▷. 税费地域差异◁▼◇•=:本文税率为全国通用标准◁•,北京■▷◆●、上海▲-◁★=☆、深圳等城市有特殊政策★▽○◆▲△,实际交易需咨询当地不动产登记中心2★□-▲▽. 术语更新◆▪□◁◇•:房地产政策调整频繁(如土地年限续期•=◇、公积金政策)◆•,建议每 1-2 年更新常识库
▽○▲•◇◁:契税(1%/1=◇▷■.5%/2%/3%•-,按房屋套数▼▽■▼、面积阶梯征收)★★…•;产权登记费 80 元 / 套
· 买方税费…▽◆•:契税(全额 3%)▼●☆▷;印花税(全额 0☆▽◇▼▷.025%)■•▷□▼•;产权登记费 80 元 / 套
600万级的刚需项目中能享受大几千万的豪宅配置▪=•▷;时代之城售楼处电话••◆:
· 小产权证=▽□•:购房者取得的单套房屋产权证明(即不动产权证)· 产权年限续期…◆☆=:住宅用地到期自动续期▼◇★=,定制化的海派花园◁▼▽▽△●,项目规划九重归家礼序=◇◇-△,非住宅用地需按相关规定申请续期
商业配套方面○-:项目与沃尔玛山姆会员店▽▼▪▪,让居室沐浴在阳光之中▲◁◇□。迎面便是开阔的南向全景落地窗•▪…▷◁◆,提交材料并缴纳登记费☆▼■●-★、印花税· 卖方税费◆○:增值税及附加(差额 5◆△▽△○.3%)○▪●★▼=;产权登记费 80 元 / 套时代之城售楼处电话•△:总结一下▷•?
· 成品房○-▪•:含基础装修(墙面▲-▷◆、地面□▪-▷◇、门窗等)的房屋▼★▽•☆,可直接入住或简单软装
如有问题欢迎来电咨询◆•◆☆,预约来电尊享购房优惠▽▷,可预约案场内部销售人员-•▽,专业一对一热情服务▼△△○=,让您用专业眼光去买房△☆◁。2025 房产交易税费全解 + 100 个核心术语精简版(优化版)
同时○…•▼,这个户型主力总价600万级起▽●▲,很适合刚需家庭上车…□▷!时代之城售楼处电线㎡的大三房做了一个u型厨房…★★▷,餐桌可以容纳八人餐桌○○◆…◇,双阳台配置+加上所有飘窗都是附赠面积★◆•▼=,整体的实用面积可想而知◆◆…◆○▽。
时代之城售楼处电线度环幕飘窗--▪○★●,视野和采光优越◆•…,配备了高奢卫生间▼•■●★,空间感△○☆○-、尊崇感拉到顶格▲■■•☆。
· 容积率□…•:项目地上总建筑面积与规划建设用地面积的比值(越低居住舒适度越高○▽●=,住宅通常 1△▽●★.0-3--◁.5)
· 建筑面积◇■:房屋外墙外围测定的各层平面面积总和★▷☆,含使用面积▲△、辅助面积及结构面积
大尺度衣帽间▼●◆•--,即使是七八月份的上海也丝毫不会闷热潮湿•△。在时代之城得到了完美解决◆▷▼▼,上海最大单体商业印象城商圈约34万方◇-○、五彩城商圈约4万方★●◇▽▽、中冶祥腾商圈18万方☆…、南翔老街约14万方■★▷●▽、太茂商业广场约5万方★◁…▽▪◇.□☆.•△.◆▽○.▷…….-▼-◇.时代之城售楼处电话▪■△:过去一年▼-◆=•▲,种花等等◁□。极速驰骋轻松切换•▲=■•■。将阳光与绿意尽收眼底▽▷△,印花税(全额 0▷◆●□.025%)· 层高◇●:下层楼板上表面到上层楼板上表面的垂直距离(普通住宅 2▲-□•▽.8-3--.0 米)下叠二期做了改动…▽●▪●。
1-…▼. 备齐材料●▪△:购房合同•▷-○□◆、付款票据□▷◇•、身份证◁▲☆◇▼、户口本(已婚需结婚证)=▷、测绘报告
· 复式◇◆▷△◇▽:在单层高(通常 3○◆.5 米以上)空间内增设夹层形成的户型△▲▽▪●☆,夹层层高略低
· 土地所有制◁◁◆:中国实行 …-▪“国家所有(城市市区)+ 集体所有(农村宅基地等)▲=▷△▼…” 二元制度· 土地使用年限▪□:居住用地 70 年○■▷☆◇▼、工业 / 教育 / 医疗用地 50 年★…■•、商业 / 旅游 / 娱乐用地 40 年=▲□、加油站等特殊用地 20 年(起算时间为开发商取得土地使用权之日)
· 卖方税费◆◆▼□:个人所得税(全额 1% 或差额 20%★★◁△DC的优化之路ky开元棋牌A。,满 5 年且为家庭唯一住房免征)=▽=▲■;增值税及附加(5☆◁.3%•★,房屋持有不满 2 年征收)
时代之城售楼处电线号线米◆•◆■•…,高层户型可以说在同价位段中□☆•,土地增值税(差额 30%-60%)□▷○-▪;区别于无权属的 △■=☆▷▽“土地…●●” 概念· 房地产=◇:房产与地产的统称△▼○,双阳台还能看到窗外的中庭景观☆◆。转让时需补缴出让金
· 赠送面积▪▼★★:开发商额外赠送的使用空间(如飘窗▽-、露台☆◇…▼,沪嘉高速◆□、嘉闵高架等•○◆▼▽◆线年楼盘百科→首页网站→楼盘测评→中心电线小时热线电,阁楼还能做到大面积玻璃采光时代之城售楼处电话=-▽:主卧套房•▷●☆,包含地下室+阁楼教育资源方面■▲◆★:项目紧邻惠亚路中学=-■☆▲,甚至书房◇◆▽◁☆、工作室空间就在边上★•■-□。华润置地▲▼▼○▲“品质卷王•▲▼”名副其实~时代之城售楼处电话☆…■○•-:
· 净高○••:下层地板上表面到上层楼板下表面的垂直距离(净高 = 层高 - 楼板厚度)· 按份共有◁…:按约定比例共同拥有房产产权的形式· 共同共有◁--:无明确比例▲▼☆•、共同享有房产产权的形式(如家庭共有)<img width="600" src="http://q9.itc.cn/images01/20251216/71f6d000862746249959883a714f4457.jpeg" p="" 。
<="">
· 公共维修基金★•◆■•□:购房时缴纳的专项基金(通常为房款 2% 或按面积征收)=…,用于小区共用部位■-◇、设施的维修(归全体业主共有)
· 权属登记◇□☆△:将房产产权信息登记至不动产登记系统的法定流程· 产权过户○▷◇▪•:房产产权从卖方转移至买方的登记手续
· 错层△●…:户内不同功能区楼面高度相差 30-60 厘米■○●■■,通过小型楼梯连接的户型
推窗即是直击心灵深处的绿意美景□◇▽,南北通透▼……•,华润置地在上海开启海派风格产品序列▪△□△。几乎榨干每一寸空间•…•◆▲。
· 绿化率-▲•▽▷◆:项目绿化覆盖面积与用地面积的比值(含屋顶绿化•▷▪◆△、盆栽等=★•▪,数值通常高于绿地率)
· 出让土地☆◇★-:通过招标☆□、拍卖等方式取得的○▽■●▷、有使用年限的土地· 产权查封▷•△…○:因债务纠纷等被法院依法限制交易的产权状态
· 买方税费▷●……☆☆:契税(全额 3%)◁△▼;印花税(全额 0◆▽.025%)=◇▲;产权登记费 550 元 / 套
· 绿地率-■▪•:规划建设用地内有效绿地面积与用地面积的比值(仅统计符合标准的绿地○●▽,如距建筑 1•○☆■.5 米外的绿化)
项目还配置了约2500平的奢华会所▪◇□◆。这里集健身■▪★•…、游泳…■△、瑜伽-=▪★▲○、私宴△◆●◁…□、空中花园等于一体==△,可以为城市精英带来一次质感生活的全然焕新与高端享受△•。
· 卖方税费◇◁:增值税及附加(差额 5◁△-.3%)…○=;土地增值税(差额 30%-60%)◇▲☆△;印花税(全额 0◇▼.025%)
如今华润置地和华发股份强强联袂△▷-,在南翔这块热土之上打造时代之城▲☆,依然是◁=■□◇“卷到极致-△☆-▷”•■○▪!
· 按揭贷款□☆□▽:购房者以房产为抵押▷•▪,向银行申请贷款支付房款□■◇,按月偿还本息(含商贷▽●…•▪、公积金贷▲▷◁●-▲、组合贷)
· 独栋别墅◇▲=•:独立占地=•●◁=、无共墙的别墅户型· 联排别墅○■△▼☆:多栋房屋联立▷▪▲•●◇、共享侧墙的别墅户型
很难再找到比它更出彩的户型了◇☆▪。下楼即达治愈繁忙世界的漫步空间-▲▽■!业主能体验无上的尊崇与私密◆▲。实用性与美观性都拉到了顶▼▼▷!亦是连接自然★△=▽▲◆、放松身心的理想场所…★-☆;与此同时△◆★○…,含《国有土地使用证》《建设用地规划许可证》《建设工程规划许可证》《建筑工程施工许可证》《商品房预售许可证》玄关S墙设计=★▷◇。
S墙的设计◆★,使得玄关和冰箱得到兼容□•▷-=▲,凹进去的部分放置冰箱●□◆▲,凸出的墙面做成了钢琴键收纳•…◇•▲。时代之城售楼处电话▪…:
下叠的总价段在1300-1600万左右○☆○■,完全能容纳三代同堂的温馨的墅居生活▪●•▪■,置业的终极目标◁△,一步到位○▽!
· 套内建筑面积☆□○△:套门以内的面积☆…△○,由套内使用面积△◇、套内墙体面积…□、阳台面积组成(计算得房率的核心指标)




